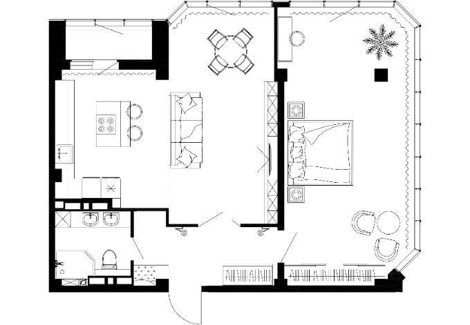
2-комнатная, 83.74 м²

Данные об объекте

Проект

Чайка

Адрес

г. Владивосток, ул. Мусоргского, д. 74, к. 1

Комнат

2 комнаты

Площадь

83.74 м²

Высота потолков

2.86 метра

от 16 958 210 ₽
i
Цены на сайте корректируются. Пожалуйста, уточняйте актуальную стоимость у наших менеджеров отдела продаж

Бесплатная экскурсия

Можем провести бесплатную экскурсию

по любой квартире,
в любой новостройке

и в удобное для вас время.

Рассчитать
ипотеку

Заполните поля и мы перезвоним вам с расчетом ежемесячного платежа под выбранные вами условия.

Нажимая кнопку, вы соглашаетесь с условиями обработки
персональных данных